Alerte mail  
  |  
Paris 7 - Quartier Saints-Pères
3 645 000 €
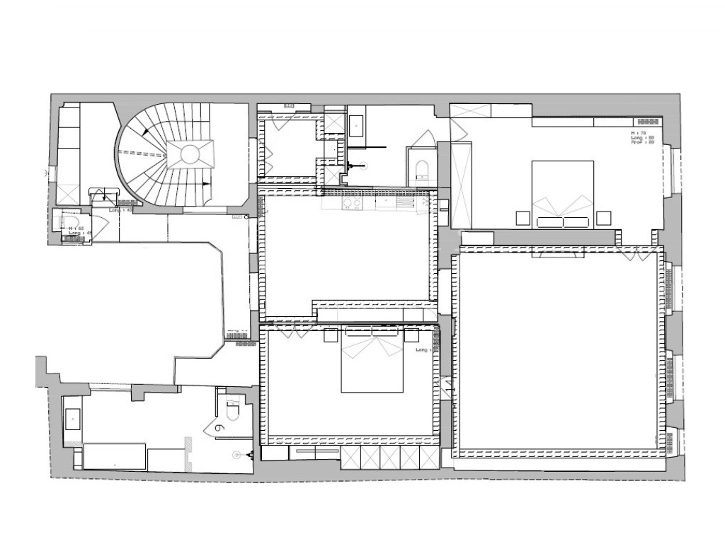
Appartement de 4 pièces de 148 m²
RUE DES SAINTS-PÈRES - À QUELQUES PAS DU BOULEVARD SAINT-GERMAIN - Seul sur le palier, au deuxième étage d'un bel immeuble ancien équipé d'un ascenseur, un magnifique appartement de 148 m² au sol (146 m² Loi Carrez) entièrement rénové en 2025 avec des matériaux haut de gamme. Ce bien comprend une entrée, une cuisine ouverte et équipée, un magnifique séjour avec une hauteur sous plafond de 3,70 m, deux suites climatisées avec pour chacune sa propre salle de bains équipée de wc et de nombreux rangements, une buanderie, ainsi que des wc invités. Appartement clé en main, entièrement rénové, bénéficiant de prestations haut de gamme, de beaux volumes, avec du parquet Versaillais, du double vitrage, l'air conditionné, une très belle luminosité, de nombreux rangements et un plan équilibré et confortable. Adresse exceptionnelle. Idéal pour un pied à terre.
CARACTERISTIQUES
Refait à neuf
Surface au sol : 148 m2
Surface carrez : 146 m2
Surface séjour : 40 m2
Hauteur sous plafond : 3.7 m
2 chambres
1 salle de bain
1 salle d'eau
3 WC
WC séparé : Oui
Nature de l'eau : Electrique
Nature du chauffage : Electrique
Cuisine : Dinatoire
Orientation : Sud-Est
Nombre d'exposition : Double
Diagnostic Energétique : F
Emission de CO2 : C
Cheminée
Parquet
Climatisation
Double vitrage
Dressing
Entrée
Moulures
Placard
Parties communes / immeuble
Année de construction : 1800
Façade : Pierre de Taille Bon état
Interphone
Ascenceur
Charges et taxes
Charges / mois : 560 €
Taxe foncière : 3 044 €
Localisation
Quartier : Saints-Pères
Métro : Saint-Germain-des-Prés
Lignes :   
Performance énergétique

Consommation énergetique primaire
414 kWhEP/m²/an

Performance énergétiques

Emission
13 kg éqCO2/m²/an

PARIS 7 - Quartier Saints-Pères
PRIX : 3 645 000 €
Honoraires d'agence à la charge de l'acquereur
 
146 m2
 
2
 
2
Votre contact:
Grégory Héral
0623043378
g.heral@novestia.fr
  être rappelé(e).
PARIS 7 - Quartier Saints-Pères
PRIX : 3 645 000 €
Honoraires d'agence à la charge de l'acquereur
 
146 m2
 
2
 
2
Votre contact:
Grégory Héral
0623043378
g.heral@novestia.fr
  être rappelé(e).