Alerte mail  
  |  
Paris 17 - Quartier Courcelles
1 730 000 €
APPARTEMENT 5 PIÈCES 126 M²
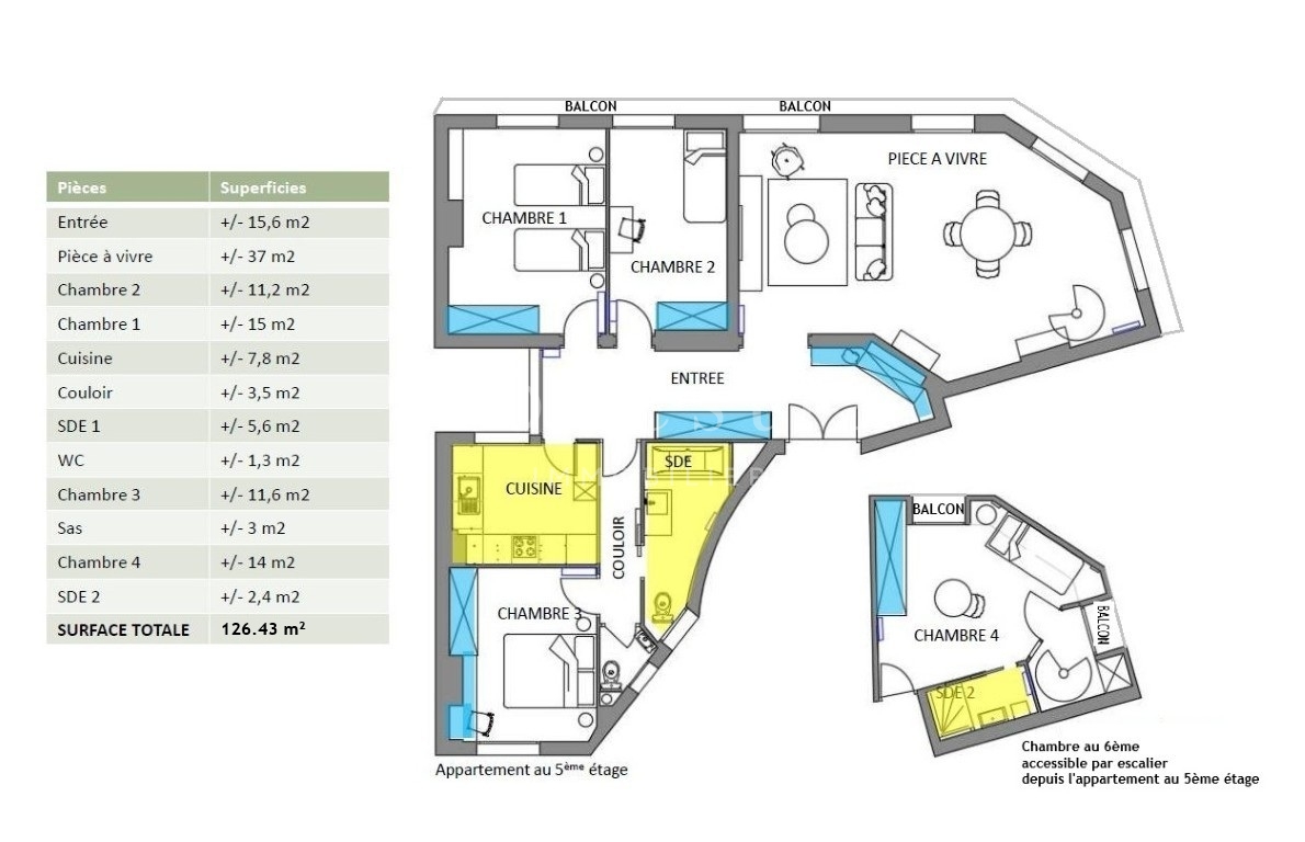
PARIS XVII - ENTRE LA RUE DE COURCELLES ET LA RUE DE PRONY - Au 5e et 6e étage d’un immeuble en pierre de taille équipé d’un ascenseur, nous vous proposons un très bel appartement de 126,43 m² Loi Carrez avec un balcon filant. Cet appartement comprend au premier niveau, une entrée, un double séjour donnant sur le balcon, une cuisine indépendante, trois chambres dont deux ayant un accès au balcon, une salle de bains avec WC ainsi qu'un WC séparé. Au second niveau, une chambre et sa salle d'eau donnant sur deux balcons. Appartement entièrement rénové en 2022, parquet, cheminée et vue dégagée. Une cave complète ce bien. À proximité immédiate du parc Monceau, de la rue de Courcelles et de ses nombreux commerces ainsi que des transports. Sectorisation Carnot.
CARACTERISTIQUES
Très bon état
Surface au sol : 126.43 m2
Surface carrez : 126.43 m2
Surface séjour : 37 m2
2 balcons : 6 m²
4 chambres
1 salle de bain
1 salle d'eau
2 WC
WC séparé : Oui
Nature de l'eau : Gaz
Nature du chauffage : Individuel gaz
Cuisine : Indépendante
Nombre d'exposition : Double
Diagnostic Energétique : D
Emission de CO2 : D
Cheminée
Parquet
Dernier étage
Double vitrage
Moulures
Parties communes / immeuble
Année de construction : 1881
Façade : Pierre de Taille
Surface cave : 3 m²
Ascenceur
Charges et taxes
Charges / mois : 350 €
Taxe foncière : 2 399 €
Localisation
Quartier : Courcelles
Métro : Courcelles
Lignes :   
Performance énergétique

Consommation énergetique primaire
183 kWhEP/m²/an

Performance énergétiques

Emission
39 kg éqCO2/m²/an

PARIS 17 - Quartier Courcelles
PRIX : 1 730 000 €
Honoraires d'agence à la charge de l'acquereur
 
126.43 m2
 
4
 
5
Votre contact:
Florian Héral
0664531465
florian@novestia.fr
  être rappelé(e).
PARIS 17 - Quartier Courcelles
PRIX : 1 730 000 €
Honoraires d'agence à la charge de l'acquereur
 
126.43 m2
 
4
 
5
Votre contact:
Florian Héral
0664531465
florian@novestia.fr
  être rappelé(e).