Alerte mail  
  |  
Paris 16 - Quartier Passy
790 000 €
Rue des sablons
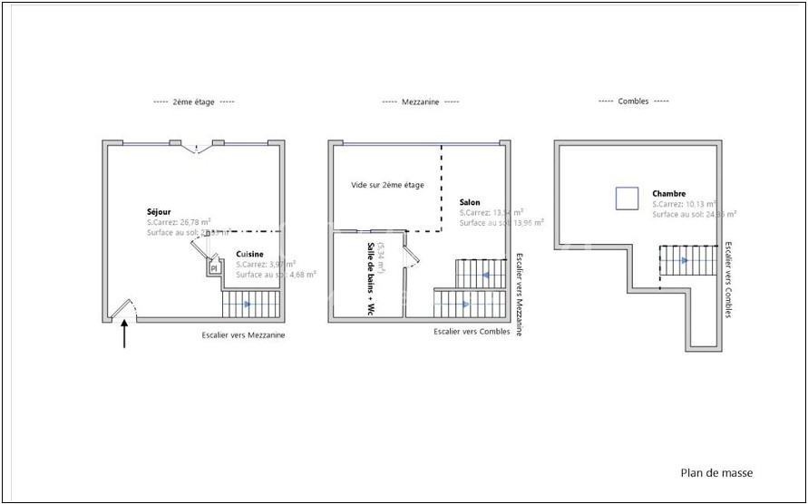
PARIS XVIe - PLACE DE MEXICO / RUE DES SABLONS - À proximité immédiate du Trocadéro et de la place Victor Hugo, au cœur d’un quartier commerçant et recherché, un rare atelier d’artiste à rénover, situé au dernier étage d’un bel immeuble Art Déco des années 1920. D’une surface de 76,82 m² au sol (59,76 m² loi Carrez), ce bien atypique et lumineux se déploie sur trois niveaux et séduit par ses volumes impressionnants, sa double verrière et une hauteur sous plafond cathédrale d’environ 5 mètres. Il se compose d’un vaste séjour cathédral avec espace salle à manger, d’une cuisine semi-ouverte, d’une mezzanine pouvant accueillir chambre, bureau ou coin TV, avec salle de bains, WC et dressing, et enfin, au dernier niveau, d’une chambre mansardée, seule sur son étage, bénéficiant d’une belle luminosité grâce à une large fenêtre de toit. Idéal pour un pied-à-terre parisien, un premier achat de standing ou un investissement patrimonial. Copropriété de 48 lots principaux. Charges annuelles : 1 879 € Taxe foncière : 1 328 € DPE : E (290 / 63) Transports : Métros Rue de la Pompe, Victor Hugo, Trocadéro (lignes 2, 6 et 9).
CARACTERISTIQUES
Surface au sol : 77 m2
Surface carrez : 60 m2
Surface séjour : 26.78 m2
1 salle de bain
WC séparé : Oui
Nature du chauffage : Individuel gaz
Diagnostic Energétique : E
Dernier étage
Parties communes / immeuble
Année de construction : 1920
Gardien
Digicode
Charges et taxes
Charges / mois : 156 €
Taxe foncière : 1 328 €
Localisation
Quartier : Passy
Lignes :    
Performance énergétique
Performance énergétiques
PARIS 16 - Quartier Passy
PRIX : 790 000 €
Honoraires d'agence à la charge du vendeur
 
60 m2
 
0
 
2
Votre contact:
Romain Devismes
0608460924
romain@novestia.fr
  être rappelé(e).
PARIS 16 - Quartier Passy
PRIX : 790 000 €
Honoraires d'agence à la charge du vendeur
 
60 m2
 
0
 
2
Votre contact:
Romain Devismes
0608460924
romain@novestia.fr
  être rappelé(e).